︎
Bloor St. Apartment
Type: Renovation ConceptDate: Winter 2020
This renovation concept was an exercise in solution-based design for a small space. The roughly 400 sqf. apartment had a number of challenges- non existent storage, an impractical kitchen, and windowless rooms. The client requested the following: a larger bathroom, laundry, a quieter bedroom that does not face onto street (but still gets light), southern and western light distributed better throughout, more storage, a kitchen work triangle, and a feeling of openness.
The end result is a bright and open apartment that capitalizes on it’s potential while tackling the increasingly relevant challenge of designing small spaces in a large city









︎
Junction Loft
Type: Visualization ExerciseDate: Summer 2020
This two-storey loft is located in a former glue factory in Toronto, ON. Converted into residential units in 2007, this particular unit was created by merging two bachelor studios in 2014 via a spiral staircase. The new owners requested floor plans and renderings so as to explore their design options and have a keepsake of their home


Main Floor


Second Floor


︎
The Rembrandt
Type: Visualization ExerciseDate: Summer 2020
Using a floor plan from Ottawa-based home builder Minto, “The Rembrandt” was brought to life using Revit, Enscape, and Twinmotion. It’s outfitted with custom furniture and casework throughout to match the 1980’s design in which it was built.





︎
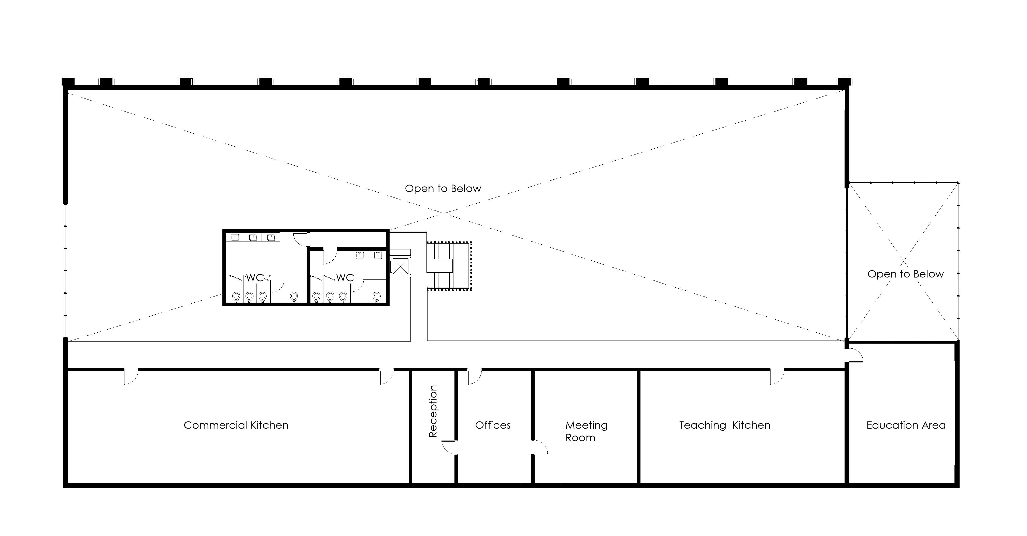
Acme Electronics Warehouse
Type: Year 2 StudioDate: Fall 2019
Collaborators: Theo Bulzan
This project began with a site feasability study for a recently purchased parcel of property (Phase 1). The client asked for the maximum development potential on the site, which we determined by abiding by the City of Vaughan Zoning Bylaw (location of site).
Phase 2 introduced a tenant: Acme Electronics, which we then created preliminary construction drawings for.
The project concluded with Phase 3: a final drawing package with floors plans and construction details. Three types of curtain wall - glazed, precast concrete panel, and insulated metal stud- were required in addition to a reinforced concrete caisson foundation. Warehouse and two-storey office floor plans were designed with the needs and requirements of the business in mind.
See:
Curtain wall model of this building
Phase 1

Phase 2


Phase 3







︎
Etobicoke Farmers’ Market
Type: Year 2 StudioDate: Winter 2020
Collaborator: Theo Bulzan
The Etobicoke Farmers’ Market was designed for the grounds of the pre-existing Etobicoke Civic Centre (ECC). The Farmers’ market would include a year-round enclosed market and seasonal outdoor market aimed to cater to the surrounding community- 20% of which is senior citizens.
We selected the northwest corner of the ECC to place the Market, given it’s easy access to the road, preservation of original site, and proximity to the retirement home.
Taking on the task of the enclosed market, I designed with accessibility and guest experience in mind. A clear grid floor plan allowed for easy circulation among vendors, with all administriation and kitchens on the second floor accessible via stairs or elevator. Ample seating on the ground floor, both indoor and outdoor, allows for visitors to relax while shopping amongst the 18 vendors. Large windows and a slanted second story roof give views to the outdoor market and surrounding buildings. Materials included brick, poured concrete, and wood.











